|
HOW OUR KITS WORK
Our pontoon lift boats kits are for those who need to lift equipment and gear out on the water. Our A-frame lift boats have a broad range of sizes and are used to lift and service pumps, move moorings and anchors, carryout recovery missions, or even carry surveying equipment.
We have three different A-frame systems available, being our 1200, 3000, and 4500 pound capacity gantry structures. Our smaller boats with 18" and 27" wide floats use the 1200 pound gantry systems, and our larger boats with 27" and 36" wide floats use our larger capacity A-frame gantries. Our 1200 pound capacity gantry is our weight-efficient system that uses aluminum legs with a stainless upper tube, while our higher-capacity units have full stainless steel construction. All of our gantry systems come equipped with lifting points for both lifting with the boat and lifting the boat as a whole. As with all our boat and barge systems, our A-frame lift boats float on our stout, foam-filled, HDPE plastic pontoon floats that are nearly indestructible. These floats are time-tested and trusted by industry, the military, and folks who catch fish. As these are bolt-together systems, assembly will be required by the end user and we have a link to thorough assembly instructions for each system right on this page. For info on shipping, PLEASE CALL US and visit the FAQ section at the bottom of this page.
|
|
|
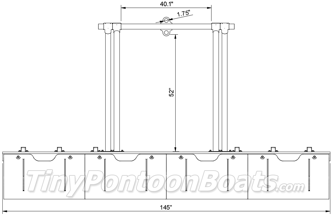
6'x10' DUAL-NOSE PONTOON LIFT BOAT KIT
$6564 FOR COMPLETE KIT
Our 6'x10' dual-nose mini pontoon lift boat kit is a small footprint boat that is made to get into tight spaces and is easy to transport. This little pontoon boat is a great solution for hanging small dredge pumps, moving mooring anchors, light-duty underwater recover, or for hanging research or surveying equipment. Our 6'x10' dual-nose mini pontoon lift boat kit comes with our weight efficient lifting A-frame and bolts together quickly (please see full description at top of page).
This compact lift boat weighs in at a mere 328 pounds, has a capacity of 673 pounds (rated at half submersion of the floats), and uses our 1200 pound capacity (more than the assembled boat) A-frame gantry system. Our kit comes with all the required hardware, and we have thorough assembly instructions here on our website. These kits are available with black and orange floats. This kit typically has a 1-3 week lead time and shipping IS NOT included in our price. Please see the SHIPPING and FAQ section at the bottom of this page for shipping details and other common questions.
*Above capacities are rated at half submersion of the floats.
|
|
|
6'x12' BLUNT END PONTOON LIFT BOAT KIT
$7358 FOR COMPLETE KIT
Our 6'x12' blunt end mini pontoon lift boat kit is for those that need a little more capacity, but still want to retain a low deck height. This small pontoon lift boat is also great solution for hanging small dredge pumps, moving mooring anchors, light-duty underwater recover, or for hanging research or surveying equipment. Our 6'x12' blunt end pontoon lift boat kit comes with our weight efficient lifting A-frame and bolts together quickly (please see full description at top of page).
This compact lift boat weighs in at only 426 pounds, has a capacity of 1010 pounds (rated at half submersion of the floats), and uses our 1200 pound capacity (more than the assembled boat) A-frame gantry system. Our kit comes with all the required hardware, and we have thorough assembly instructions here on our website. These kits are available with black and orange floats. This kit typically has a 1-3 week lead time and shipping IS NOT included in our price. Please see the SHIPPING and FAQ section at the bottom of this page for shipping details and other common questions.
*Above capacities are rated at half submersion of the floats.
|
|
|
8'x12' BLUNT END PONTOON LIFT BOAT KIT
WITH 1200 POUND CAPACITY A-FRAME $10140 FOR COMPLETE KIT
Our 8'x12' pontoon lift boat makes full use of the 1200 pound capacity lift frame and is for those who need full-size capability. This pontoon lift boat uses our 27" wide floats and has an extra stable 101" overall width. These boats are typically used for lifting dredge pumps, performing underwater maintenance, and recovery. This size lift boat fits on standard pontoon boat trailers as well.
This mid-sized lift boat weighs in at a manageable 689 pounds, has a hefty capacity of 1657 pounds (rated at half submersion of the floats), and uses our 1200 pound capacity A-frame gantry system. Our kit comes with all the required hardware, and we have thorough assembly instructions here on our website. These kits are available with black and orange floats. This kit typically has a 1-3 week lead time and shipping IS NOT included in our price. Please see the SHIPPING and FAQ section at the bottom of this page for shipping details and other common questions.
*Above capacities are rated at half submersion of the floats.
Due to the size of our kits, we are unable to provide a shipping calculator. SHIPPING IS NOT INCLUDED in our pricing, so please contact us for a shipping quote before placing your order.
|
|
|
HEAVY 8'x12' BLUNT PONTOON LIFT BOAT KIT
WITH 3000 POUND CAPACITY A-FRAME PRICE CURRENTLY BEING UPDATED
The HEAVY version of our 8'x12' blunt end pontoon boat lift boat gets as much lift capacity as possible in a compact design. This set-up has options too as the full stainless steel 3000 pound capacity A-frame gantry system can be provided as a standard or "TALL" version, which provides an extra 14.8" of lift height. You guessed it; the lower price sytem comes with our standard height A-frame.
Both configurations use our 27" wide floats and aluminum base frame components. This makes for a sturdy, yet light-weight set-up that anyone can assemble. The assembled boat has an overall width of 101", so it's very stable and easy to find a trailer for. Our kits come with all the required hardware, and we have thorough assembly instructions here on our website (coming soon). These kits are available with black and orange floats. Galvanized mild steel leg assemblies are also available if you need a more budget-friendly option. Please CALL us for details. This kit typically has a 2-4 week lead time and shipping IS NOT included in our price. Please see the SHIPPING and FAQ section at the bottom of this page for shipping details and other common questions.
The CAD files above are for our full stainless steel A-frame boats. If opting for the galvanized steel leg configurations, 1/8" thick delrin isolator plates will be included and are not shown in our CAD designs.
*Above capacities are rated at half submersion of the floats.
Due to the size of our kits, we are unable to provide a shipping calculator. SHIPPING IS NOT INCLUDED in our pricing, so please contact us for a shipping quote before placing your order.
The fully accessoriesed boat kit with "tall" A-frame, decking, floor plates, and pipe railing system shown above was last priced out November 2025 landed at $18,010. If intereseted in a similar sytem, please contact us.
|
|
|
10'x20' DUAL-NOSE LIFT BOAT KIT
WITH 4500 LB GANTRY PRICE CURRENTLY BEING UPDATED Our 10'x20' dual-nose lift boat system floats on our large 36" wide floats, comes equipped with our 4500 pound capacity, ALL STAINLESS STEEL A-frame gantry system, and uses our hybrid barge frame components. What's our hybrid frame? That's a simple frame concept that uses laser-cut 6"x2", 3/16" wall 304 stainless steel "main tubes" (holes for mounting crossmembers are included - mounting holes for floats are drilled during assembly) and 1/4" thick, 4" tall aluminum hat channels. This makes for both a super-stout and weight-efficient frame system that assembles quickly and easily.
This boat system is for those who need to handle HEFTY lifts as it has a total rated craft capacity of 5860 pounds. That's almost 3 tons! This kit comes with all the required hardware and we will be posting thorough assembly instructions here soon. These kits are available with black and orange floats. Lead times for these kits can vary greatly depending on production work load. Best-case lead times are 3-5 weeks, but are typically longer. As shipping is NOT included in our pricing, please contact us for current lead times and a freight quote. Please see the SHIPPING and FAQ section at the bottom of this page for additional shipping details and other common questions.
*Above capacities are rated at half submersion of the floats.
|
|
|
Army floats
Army pontoons Barge pontoons Big ass floats Big ass pontoons |
Bridge floats
Dive platform Dock floats Dredge docks Dredge floats |
Drill platforms
Dredge platforms Dredge pontoons Dredge pump floats Dredge pump pontoons |
Drilling platforms
Drill platforms Ferry floats Ferry pontoons Float house float |
Float house pontoon
Floatel floats Floatel flotation Floatel pontoons Floathouse float |
Floathouse pontoon
Floating bridge floats Drill platforms Floating bridge pontoons Floating foundation |
Floating home floats
Floating home pontoons Floating house floats Floating modular house base Floating modular platform |
Floating modular platforms
Floating pump docks Floating pump platforms Flotel floats Flotel flotation |
Flotel pontoons
Giant floats Giant modular float Giant pontoon Giant pontoons |
Giant pontoons
Houseboat floats Houseboat pontoon floats Houseboat pontoons Huge floats |
Huge pontoons
Industrial docks Industrial floats Industrial pontoons Industrial work platforms |
Marine construction floats
Military floats Military pontoons Navy floats Navy pontoons |
Pier floats
Pontoon barge system Pontoon pump floats Pontoon pump platforms Pump barge floats |
Pump barge pontoons
Pump dock floats Pump pontoons Work barge floats Work platform floats Work platform floats |
|
FREQUENTLY ASKED QUESTIONS |




























